
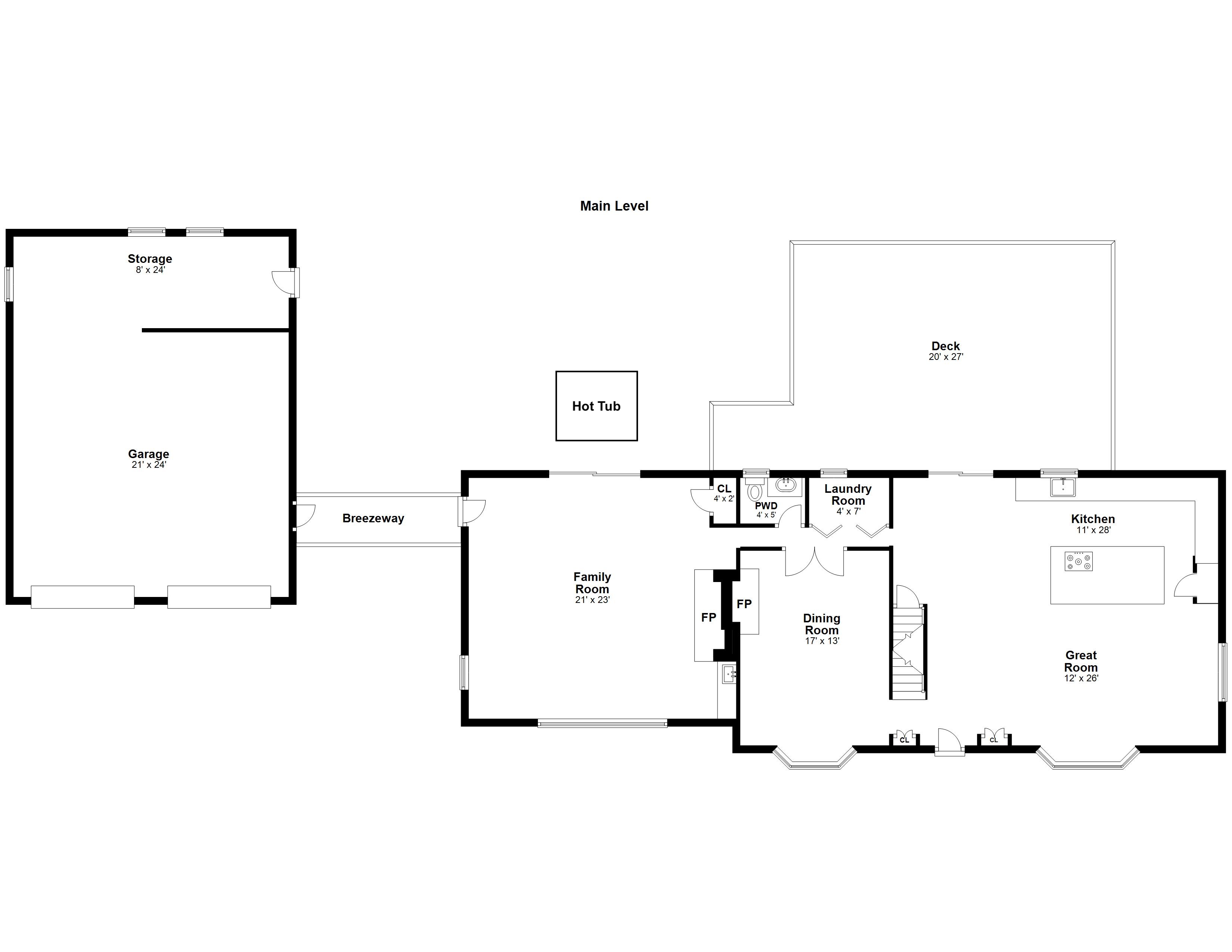
Stunning N Stamford Col with Expansive Yard and Modern Comforts. This Col home welcomes you w/ an open floor plan that combines practicality w/ modern touches. Spacious, sun-filled GR opens to the updated KIT feat. Thermador appl, an ilnd with brkfst bar, plenty of granite cntr space & Sliders to Deck. The DR w/ Fireplace provides the perfect venue for hosting special occasions. Fabulous FR with Vltd Ceiling, Skylights, Wet Bar, Fireplace, Sliders to Patio and access to the breezeway leading to the Garage offers a comfortable setting for everyday living. Conveniently located Laundry Closet and Powder Room complete the main level. Upstairs, the Primary BR features a W-in Closet and Primary Bath with a dbl vanity and a w-in shower. Three additional BRs and a Full Hall Bath offer ample space for family and guests. The LL includes a partially finished area, ready to be customized for your needs-whether it’s a home office, gym, or playroom, full of possibilities, with ample storage space. A 2-car Detached Garage, connected to the home by a Breezeway offers additional storage. Situated on a corner lot, the expansive, level yard is perfect for outdoor living and entertaining, featuring a cozy Firepit for gathering on cool evenings and a Hot Tub for unwinding after a long day. Freshly painted inside & out, gleaming HDWD Flrs run throughout, w/ 2nd Flr & stairs recently refinished, this Col is a perfect blend of charm, functionality & outdoor appeal, ready to welcome you home.
View full listing details| Price: | $950,000 |
| Address: | 333 Hunting Ridge Road |
| City: | Stamford |
| County: | Fairfield |
| State: | Connecticut |
| Zip Code: | 06903 |
| MLS: | 37972C1738081682334 |
| Year Built: | 1965 |
| Square Feet: | 2,904 |
| Acres: | 1 |
| Lot Square Feet: | 1 acres |
| Bedrooms: | 4 |
| Bathrooms: | 3 |
| Half Bathrooms: | 1 |


Leave a Reply